Акустические решения для студий, hi-fi комнат и офисов
План размещения акустических материалов и рекомендации по звукоизоляции в новостройке для Александра Соколова
Смотреть проект
Студия звукозаписи ЭНСАУНД. Работа под ключ: анализ, чертежи, дизайн, строительные работы, акустические материалы, мебель, настройка - всё сделано силами MUTE …
Смотреть проект
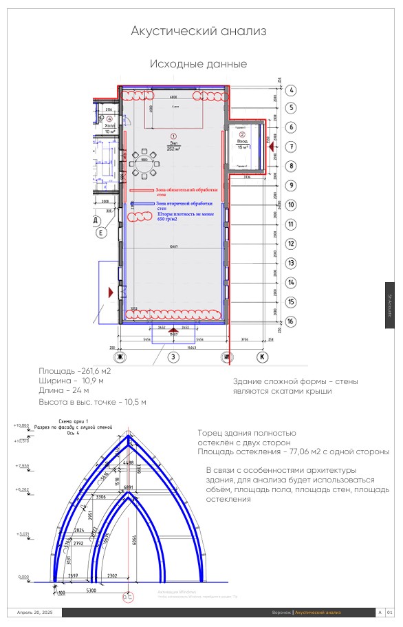
Купольный зал для проведения разного вида праздников. Площадь и наполняемость зала людьми требовала мощной акустической системы, однако акустика комнаты не …
Смотреть проект
Акустическая подготовка конференц-зала, оборудованного аудио-видео системой для проведения онлайн презентаций и звонков.
Смотреть проект
Рассчитаем акустику вашего помещения бесплатно — за 24 часа